г Тула, ул Галкина, д 2
Пн-пт с 09:00 до 19:00, Сб-вс с 10:00 до 17:00

Дом Галкина 260а ID: J511

Тула, улица Галкина, д.260А

Комнаты свободная планировка
Площадь 187 м²
Этажи 2
Сдача 2021
11 990 000
64 117 /м²
Рассчитать ипотеку
Захарова Наталия

Захарова Наталия
Специалист по недвижимости

+7(952)017-3534

esn_tkacheva@mail.ru
QR
Ссылка на объект

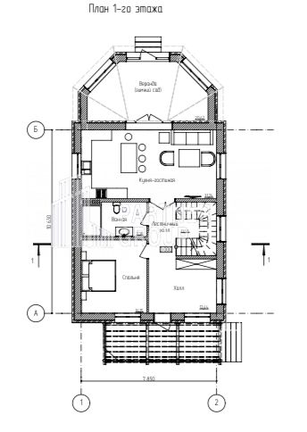
Описание

Продается индивидуальный двухэтажный кирпичный жилой дом рядом с парком!
Большая кухня-гостиная, 4 спальни, кабинет, 2 сан.узла, закрытая веранда, открытая терраса. В доме выполнена чистовая отделка всех помещений. Подвал оснащен тёплыми полами.
Все коммуникации централизованные и введены в дом: водоснабжение, канализация, электричество 15 кВт, газоснабжение (установлен двухконтурный котел).
Воплотите свою мечту в жизнь!
Звоните! Отвечу на все интересующие Вас вопросы по телефону.
В продаже имеется еще один дом.

Характеристики

  • Тип недвижимости Дома, дачи
  • Населенный пункт Тула
  • Адрес улица Галкина, д.260А
  • Тип объекта дом
  • Тип дома кирпично-монолитный
  • Общая площадь 187 м²
  • Площадь участка 5 сот.
  • Количество этажей 2
  • Подвальное помещение Подвал
  • Год постройки 2021
  • Материал стен Кирпич
  • Санузел в доме
  • Душ В доме
  • Удобства Вода, свет, газ, канализация
  • Статус участка Индивидуальное жилищное строительство (ИЖС)
  • Количество комнат свободная планировка

Задать вопрос



Вас также может заинтересовать:

16
дом 122.6 м² на участке 6 сот.
Тула, Тула, Тульская обл., муниципальное образование Тула, д. Ямны, коттеджный пос. Ямны

12 995 600
  • Тип дома:кирпичный
  • Количество этажей:1
  • Год постройки:2025
  • Материал стен:Кирпич
34
коттедж 235 м² на участке 6.6 сот.
Тула, улица Газовая, д.44А

14 500 000
  • Тип дома:кирпичный
  • Количество этажей:2
  • Год постройки:2012
  • Материал стен:Кирпич
17
дом 145 м² на участке 10.3 сот.
Тула, Тульская обл, Ленинский р-н, деревня Ямны

9 950 000
  • Тип дома:блочный
  • Количество этажей:1
  • Год постройки:2025
  • Материал стен:Газоблоки

Мы используем файлы cookie, чтобы обеспечить вам наилучший доступ к нашему веб-сайту

Скопировано